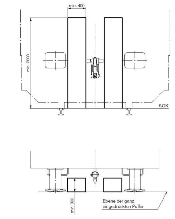
Anlage 4
An den Enden der Schienenfahrzeuge freizuhaltende Räume
(Maße in mm)
Zusatzdokumente: image001
Lizenziert vom RIS (ris.bka.gv.at - CC BY 4.0 DEED)
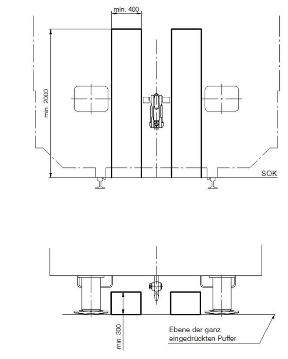
Anlage 4
An den Enden der Schienenfahrzeuge freizuhaltende Räume
(Maße in mm)
Zusatzdokumente: image001
Lizenziert vom RIS (ris.bka.gv.at - CC BY 4.0 DEED)